Type of service: RECONSTRUCTION OF FAMILY HOUSE IN PROTECTED HISTORICAL ZONE
Type of facility: Family residential house located in the “Monumental Ensemble Krushevo”
This project is a carefully designed intervention aimed at preserving the authenticity and historic character of the existing house while significantly improving its functionality, safety, and long-term sustainability.
Our team conducted a detailed analysis of the existing conditions and developed a sensitive design solution that integrates modern construction and energy efficiency standards while respecting the cultural context.
Project Highlights:
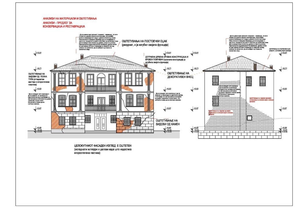
- Insertion of an independent reinforced concrete structure with separate foundations inside the existing house
- Installation of toilets on the first and second floors
- Reconstruction of all three levels while preserving the existing footprint
- Replacement of the wooden load-bearing roof with a new structure and restoration of two deteriorated wooden balconies
- Replacement of old wooden windows and doors with new joinery
- Cleaning and restoration of three existing stone façades; installation of thermal insulation on the plastered front façade
Design Year: 2025
Location: Kiro Fetak St. No. 24, KP 4842, KO Krushevo, Municipality of Krushevo, North
Macedonia
Documentation: Basic Design Completed





